Contactez-nous

CHESTER

Modèle classique épuré. Grande fenestration offrant une luminosité naturelle et une vue panoramique.

CHESTER

Possibilité d'être concu en

Maison en kit

Pensés pour l’autoconstructeur : des panneaux préfabriqués (murs, charpente, panneaux) livrés prêts à assembler, afin de réduire les coûts et faciliter votre chantier.
 

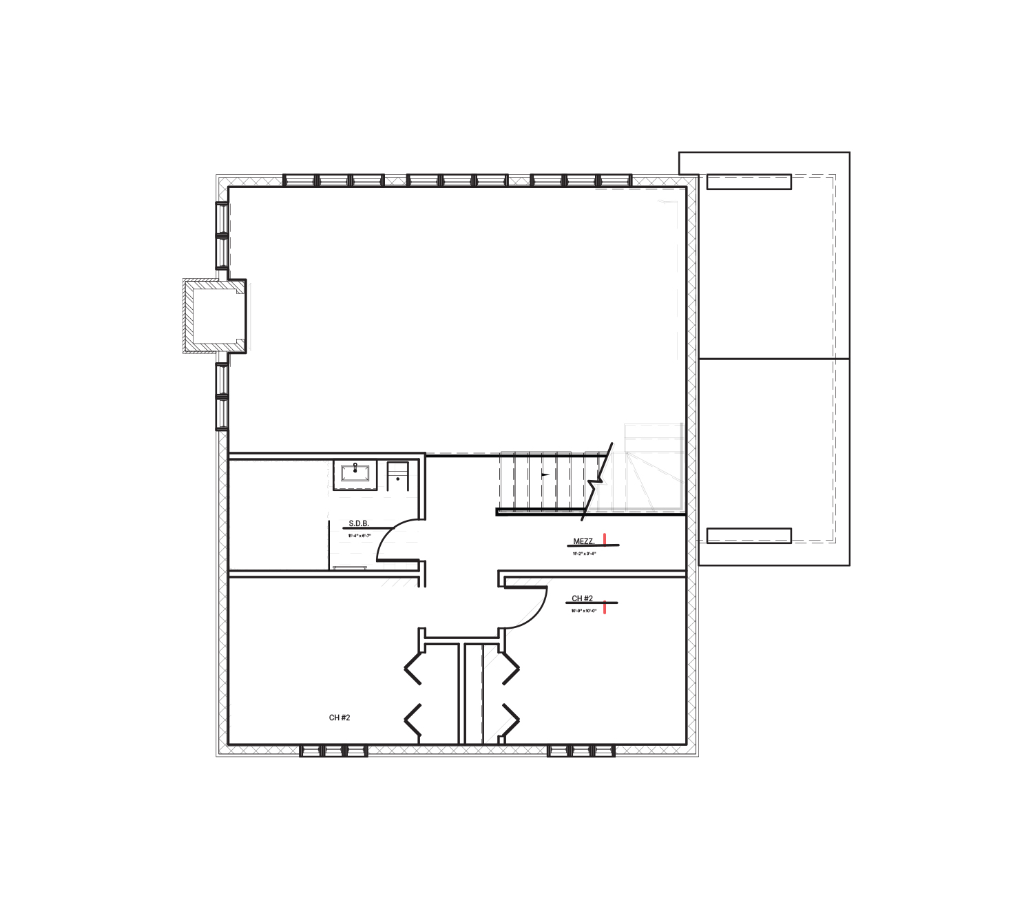
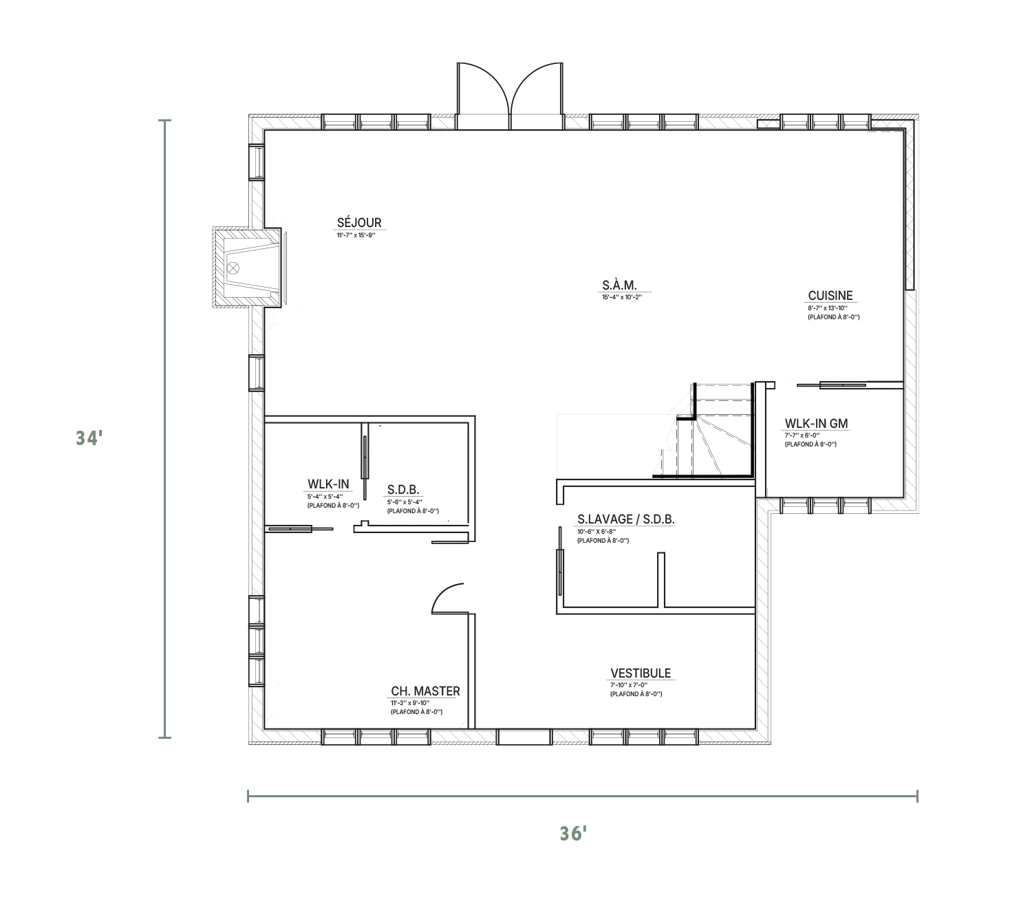
Les plans du modèle

Tous nos plans sont adaptables selon vos besoins.

Service d’accompagnement pour autoconstructeurs dans notre zone (Laurentide, Lanaudière*) Option KIT

Découvrez nos différents blocs d’accompagnement

  • Panneaux de murs extérieurs
  • Toiture
  • Portes et fenêtres
  • Isolation complète
  • Pare-vapeur
  • Fourrure
  • Revêtement extérieur
  • Assemblage complet de la structure
  • Revêtement
  • Toiture
  • Pose des fenêtres
  • Coffrage
  • Béton
  • Pompe à béton
  • Imperméabilisation
  • Isolation sous-dalle
  • Dalle de béton
  • Main-d’œuvre pour l’isolant
  • Électricité
  • Plomberie
  • Ventilation
  • Gypse
  • Tirage de joints
  • Peinture – 2 couches
  • Portes et moulures
  • Pose plancher flottant
  • Pose céramique
  • Escalier bois franc
  • Armoires cuisine et
  • vanités

*Ce contenu est fourni à titre indicatif. Pour plus de détails, veuillez consulter votre conseiller Factory.