Contactez-nous

Bosca

Look grandiose, plafond cathédrale, grande fenestration et foyer central en pierre — fait pour impressionner.

Bosca

Possibilité d'être concu en

Maison en kit

Pensés pour l’autoconstructeur : des panneaux préfabriqués (murs, charpente, panneaux) livrés prêts à assembler, afin de réduire les coûts et faciliter votre chantier.

Maison modulaire

La maison modulaire est livrée et installée. Les travaux de structure sont complétés, il ne reste que la finition intérieure.

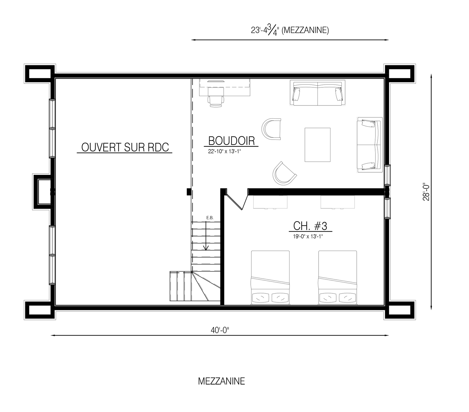
Les plans du modèle

Tous nos plans sont adaptables selon vos besoins.

Service d’accompagnement pour autoconstructeurs dans notre zone (Laurentide, Lanaudière*) Option KIT

Découvrez nos différents blocs d’accompagnement

  • Panneaux de murs extérieurs
  • Toiture
  • Portes et fenêtres
  • Isolation complète
  • Pare-vapeur
  • Fourrure
  • Revêtement extérieur
  • Assemblage complet de la structure
  • Revêtement
  • Toiture
  • Pose des fenêtres
  • Coffrage
  • Béton
  • Pompe à béton
  • Imperméabilisation
  • Isolation sous-dalle
  • Dalle de béton
  • Main-d’œuvre pour l’isolant
  • Électricité
  • Plomberie
  • Ventilation
  • Gypse
  • Tirage de joints
  • Peinture – 2 couches
  • Portes et moulures
  • Pose plancher flottant
  • Pose céramique
  • Escalier bois franc
  • Armoires cuisine et
  • vanités

*Ce contenu est fourni à titre indicatif. Pour plus de détails, veuillez consulter votre conseiller Factory.